Okna a dveře
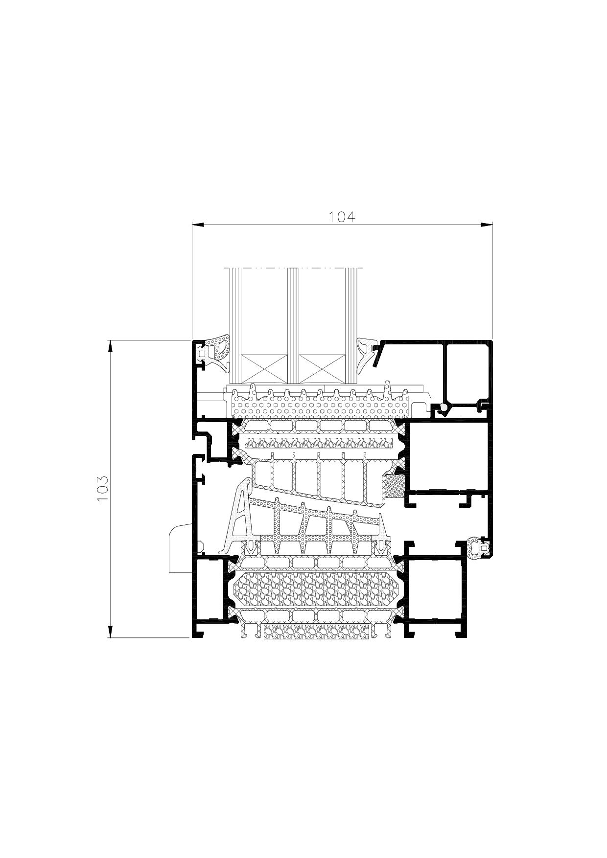
MB-104 Passive pasivní standard
- okenní systém pro použití v pasivních domech a nízkoenergetické výstavbě
- tepelná izolace UW pro otevíravé okno od 0,64 W/m2K a dveře od 0,69 W/m2K
- stavební hloubka rámu 95 mm, dveřní křídla 95 mm a okenní křídla 104 mm
- systém je dostupný ve 2 izolačních variantách SI a AERO
MB-86 nízkoenergetická výstavba
- okenní systém pro použití v nízkoenergetické výstavbě
- tepelná izolace UW pro otevíravé okno od 0,8 W/m2K a dveře od 0,9 W/m2K
- stavební hloubka rámu 77 mm, dveřní křídla 77 mm a okenní křídla 86 mm
- systém je dostupný ve 3 izolačních variantách ST, SI a AERO
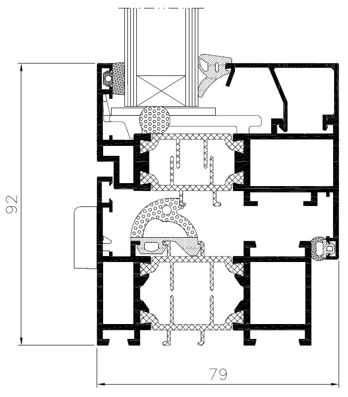
MB-70 zvýšená izolace
- okenní systém s dobrou tepelnou izolací
- tepelná izolace UW pro otevíravé okno od 1 W/m2K a dveře od 1,2 W/m2K
- stavební hloubka rámu 70 mm, dveřní křídla 70 mm a okenní křídla 79 mm
- systém je dostupný ve 2 izolačních variantách standard a HI
Panelové dveře
- jsou dostupné v systémech MB-86 a MB-104 Passive
- tepelná izolace Ud celých dveří dosahuje špičkových hodnot od 0,44 W/m2K
- stavební hloubka rámu a dveřního křídla 77/95 mm (MB-86/MB-104)
- systém je dostupný ve 3 variantách vložená výplň, jednostranně a oboustranně překryvná výplň
